| Sign In | Join Free | My chinalane.org |
|
Brand Name : SUNNY
Model Number : SN-SG-X3B
Certification : CCC, ISO9001
Place of Origin : China
MOQ : 1 set
Price : $50~120
Payment Terms : Western Union, T/T, L/C,Paypal
Supply Ability : 10000 Pcs/ Month
Delivery Time : 7 working days
Packaging Details : Wooden box
Name : Overspeed Governor
Speed : 0.25~2.0m/S
Rope Tension Force : 800~1500n
Rope Diameter : 8 mm
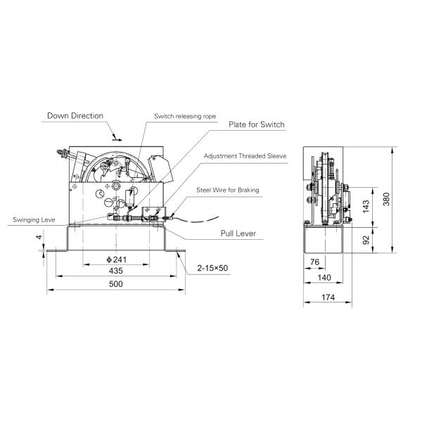
Sheave Diameter : 241 mm
Warranty time : One Year
Product name : Safety system high quality guide rail shoes roller elevator components
Category : Elevator parts
Model : Overspeed Governor
Type : Overspeed Governor
0.25 - 2.0m/S Speed Elevator Safety Components Overspeed Governor Lift Safety Devices
Elevator Overspeed Governor
The Overspeed Governor is a critical safety device in elevators, designed to prevent catastrophic accidents caused by excessive speed. It consists of a flywheel, centrifugal mechanism, and tripping device, typically installed in the elevator machine room or hoistway.
Speed Detection: The governor rotates with the elevator car via a rope. If the speed exceeds the preset limit (usually 125% of rated speed), centrifugal force activates the mechanism.
Activation: The governor engages a safety gear or triggers an emergency brake, halting the car.
Backup Power: Modern systems integrate with electrical safety circuits to cut power if overspeed occurs.
Elevator overspeed governor (SN-SG-X3B)
Model Name: SN-SG-X3B
Description
| Rated speed: | 0.25~2.0m/s |
| Rope tension force: | 800~1500N |
| Rope Diameter: | 8 mm |
| Sheave diameter: | 241 mm |
| Car Travel: | If tensile for tension device is 350N: H ≤ 80m |

Elevator Overspeed Governor (SN-SG-X12B)
Model Name: SN-SG-X12B
Description
| Rated Speed: | V: 0.25~2.0m/s |
| Rope tension force: | 800~1500N |
| Rope Diameter: | 8 mm |
| Sheave diameter: | 241 mm |
| Car Travel: If tensile for tension device is 350N: | H ≤ 80m |
| If tensile for tension device is 450N: | 80m< H≤ 120m |





FAQ
1. Are the elevator wire ropes durable?
The elevator wire rope has special provisions and requirements. Configuration is not only for wire rope and rated load, but also considered the size of the traction, as a result, the tensile strength of wire rope is greater than the weight of the lift. The safety factor is equipped with more than four wire rope. So it won’t break at the same time.
2. Is it dangerous for power failure suddenly during the elevator running?
If it occurs, the elevator will automatically stop due to the electrical and mechanical safety device. In case of power failure,elevator brakes will automatically taken. In addition, the power supply departments such as planned outage, prior notice are also operating.
3. Will us be hurt when it closed suddenly?
In the closing process, if people touch the hall door, the door of elevator will automatically restart without any danger. With anti clamping switch, once the gate touched, this switching action make the elevator unable to be closed and even reopened. In addition, closing force is also available here.
4. How the elevator running?
Elevators are operated with a counterweight wire rope through the (tractor) traction drive, making ups and downs on the guide rail.
5. Is the escalator installation complicated?
We believe the functions of an escalator are not necessarily proportional to the operation complexity. Therefore, escalators designed by us apply an integrated structure, so that the equipment is more precise and more efficient and allows easier and more convenient commissioning.
6. Do you have any cerifications?
Yes, we do with ISO9001 / CCC / CE Certificates for u.
|
|
0.25 - 2.0m/S Speed Elevator Safety Components Overspeed Governor Lift Safety Devices Images |